Luxuriöser Neubau-Erstbezug
Objektbeschreibung
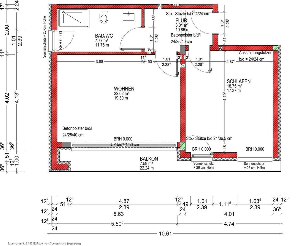
Diese hochwertige 2ZW bietet Ihnen einen sonnigen Balkon für entspannte Stunden im Freien. Ferner besticht diese Wohnung durch eine moderne Raumaufteilung, den hohen Wohnkomfort und durch ihre beste Wohnlage in Rödermark/ Ober-Roden.
Aufteilung:
-Großes Wohn- Esszimmer mit offener Küche und Zugang zum sonnigen Balkon
- Schlafzimmer
- Badezimmer
- Diele
- Pkw-Außenstellplatz
- Waschkeller
Ausstattung
Die Wohnung überzeugt mit einer Ausstattung, die keine Wünsche offenlässt:
- luxuriöse Einbauküche mit hochwertigen Elektrogeräten von Siemens und AEG
- Fliesen in Natursteinoptik
- Fußbodenheizung für behagliche Wärme
- elektrische Jalousien
- Fenster und Türen mit hochwertigen Edelstahlgriffen
- Wärmepumpe – effizient und zukunftssicher
Lage
Ruhige Wohnlage von Rödermark/ Ober-Roden, in Feldrandnähe.
Rödermark ist eine sympathische Ortschaft im Grünen, südlich von Frankfurt gelegen und bietet gute Verkehrsanbindungen in alle Städte des Rhein-Main-Gebietes. Der Flughafen ist mit dem Auto bequem in 25 Minuten zu erreichen. Mit der Dreieichbahn sind Sie in 29 Minuten am Frankfurter Hauptbahnhof ohne Umsteigen.
- Einkaufsmöglichkeiten schnell und bequem zu Fuß erreichbar
- Kindergärten und Schulen bis zum Abitur
- Badeseen
- Kinderspielplätze
- Sportstätten
- umfangreiche Freizeit- und Kulturangebote
Verkehrsanbindungen:
- Nähe zur Autobahn A3, A5 und A661
- S-Bahnanschluss
- Buslinien
Sonstiges
Sonstiges
Wir weisen darauf hin, dass die von uns
weitergegebenen Objektinformationen, Unterlagen, Pläne etc. vom Veräußerer bzw. Vermieter stammen.
Eine Haftung für die Richtigkeit oder Vollständigkeit der Angaben übernehmen wir daher nicht. Es obliegt daher unseren Kunden, die darin enthaltenen Objektinformationen und Angaben auf ihre Richtigkeit hin zu überprüfen.
| Objekt ID: | Objekt-ID.: 162834771 |
| Verfügbar ab: | sofort |
| Miete: | 990.- EUR |
| Nebenkosten: | 120.- EUR |
| Heizkosten: | in Nebenkosten enthalten |
| Gesamtmiete: | 1.110.- EUR |
| Miete pro qm: | 16,78.- EUR |
| Kaution: | 3 kalte Monatsmieten |
| Zimmer: | 2 |
| Schlafzimmer: | 1 |
| Badezimmer: | 1 |
| Wohnfläche: | 59 m² |
| Etage: | 1 |
| Etagen: | 2 |
| Baujahr: | 2025 |
| Objektzustand: | Erstbezug |
| Ausstattungskategorie: | Luxus |
| Heizungsart: | Fußbodenheizung |
| Befeuerungsart: | Strom |
| Baujahr lt. Energieausweis: | 2024 |
| Energieeffizienzklasse: | A+ |
| Wert des Endenergiebedarfs: | 22,6 kWh/(m²*a) |
| Art des Energieausweises: | Bedarfsausweis |






















