Moderner Loft – Bezug nach hochwertiger Sanierung – barrierefrei u. behindertengerecht
Diese sehr helle und gut geschnittene Loftwohnung wurde jüngst vollständig saniert, wobei größten Wert auf eine moderne und hochwertige Ausstattung gelegt wurde. Die Wohnung liegt im dritten OG eines Wohn- und Geschäftshauses und ist bequem durch einen Personenaufzug erreichbar.
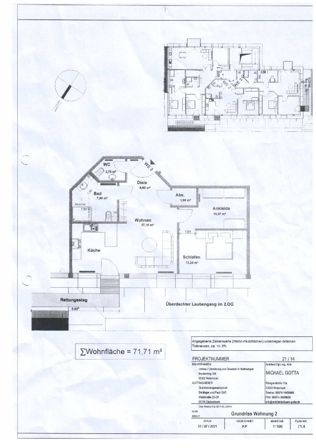
Außerdem ist die Wohnung barrierefrei und behindertengerecht ausgeführt.
Aufteilung:
- Wohnzimmer mit offener Küche
- Schlafzimmer
- Ankleide
- Abstellraum
- großes Badezimmer
- Gäste WC
Ausstattung
- 3fach verglaste Fenster
- hochwertige Einbauküche
- Vinylfußboden
- Personenaufzug
- behindertengerechte Ausstattung
- Anschluss für die Waschmaschine im Badezimmer
Lage
Die Wohnung liegt in Rödermark/ Ober-Roden, im Wohngebiet Breidert.
Rödermark ist eine sympathische Ortschaft im Grünen, südlich von Frankfurt gelegen und bietet gute Verkehrsanbindungen in alle Städte des Rhein-Main-Gebietes. Der Flughafen ist mit dem Auto bequem in 25 Minuten zu erreichen.
- Einkaufsmöglichkeiten schnell und bequem zu Fuß erreichbar
- Kindergärten und Schulen bis zum Abitur
- Badeseen
- Kinderspielplätze
- Sportstätten
- umfangreiche Freizeit- und Kulturangebote
Verkehrsanbindungen:
- Nähe zur Autobahn A3, A5 und A661
- S-Bahnanschluss
- Buslinien
Sonstiges
Wir weisen darauf hin, dass die von uns
weitergegebenen Objektinformationen, Unterlagen, Pläne etc. vom Veräußerer bzw. Vermieter stammen.
Eine Haftung für die Richtigkeit oder Vollständigkeit der Angaben übernehmen wir daher nicht. Es obliegt daher unseren Kunden, die darin enthaltenen Objektinformationen und Angaben auf ihre Richtigkeit hin zu überprüfen.
| Objekt ID: | 161946152 |
| Verfügbar ab: | sofort |
| Miete: | 750.- EUR |
| Nebenkosten: | 200 EUR |
| Heizkosten: | in Nebenkosten enthalten |
| Gesamtmiete: | 950 EUR |
| Kaution: | 3 kalte Monatsmieten |
| Zimmer: | 2,5 |
| Schlafzimmer: | 1 |
| Badezimmer: | 1 |
| Wohnfläche: | 71,71 m² |
| Nutzfläche: | 2 m² |
| Baujahr: | 1989 |
| Letzte Renovierung: | 2024 |
| Objektzustand: | Erstbezug nach Sanierung |
| Ausstattungskategorie: | Luxus |
| Heizungsart: | Gas-Heizung |
| Befeuerungsart: | Gas |
| Baujahr lt. Energieausweis: | 1989 |
| Energieeffizienzklasse: | D |
| Wert des Endenergiebedarfs: | 121,2 kWh/(m²*a) |
| Art des Energieausweises: | Bedarfsausweis |
| Gültigkeit des Energieausweises: | liegt vor |



















